City Council chooses tax-exempt refinancing
Published 1:59 pm Wednesday, February 25, 2015
After almost an hour of discussion, the Maple Valley City Council unanimously voted to refinance the city’s $2.9 million in general obligation bonds using a tax-exempt structure, keeping the status quo on the Legacy Site.
The tax-exempt option saves the city approximately $47,000 more than the other option of taxable bonds.
The tax-exempt option also keeps the current use restrictions on the land, which Councilman Layne Barnes said it is “just enough flexibility” for what the original plan was for the land.
“At the end of the day, based upon what the CAC’s (Citizen’s Advisory Committee) report was… I have every belief that flexibility exists with the tax-exempt situation,” Barnes said.
Councilman Dana Parnello agreed with Barnes.
“One option gives us more flexibility, the other maintains the flexibility we’ve had.”
He said he didn’t see a compelling argument to not go with the tax-exempt option.
In the original Citizen’s Advisory Committee report dated June 27, 2005, the committee made recommendations to the City Council at the time for potential uses of the Legacy Site. Among those recommendations was the construction of a City Hall, a community meeting hall, a performance center and community amphitheater and commercial/retail use.
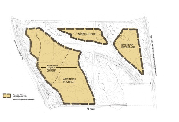
Barnes presented two maps to the council Monday night, both from the original CAC report in 2005.
One map outlined three “potential primary development zones,” or areas that the CAC recommended could be used for private purposes or sold. It also says these zones are the “maximum suggested extent” for this use.
“The three areas represent less than 50 percent of the site,” Barnes said. Meaning, “We don’t have more than 50 percent of the land to sell.”
Currently, 50 percent of the Legacy Site was purchased using the bonds, the other fifty percent was purchased using the city’s money. In the tax-exempt structure, this means the half not purchased with the bonds and up to 5 percent of the half purchased with the bonds can be used for private purposes. The rest has to be set aside for public use under that limitation.
As stated at the meeting Monday, the term “public use” can be broadly interpreted. It can mean a library, a City Hall building, a jail, open space and recreation center.
In a letter to the City Council dated Feb. 4, former council member Victoria Laise Jonas expressed her agreement with the option to refinance using the tax-exempt structure.
She stated in the letter this option will “continue to protect the vision of this public land.”
